Manual of Illegal Floor Plans
A collection of single stair buildings,
illegal in Canada
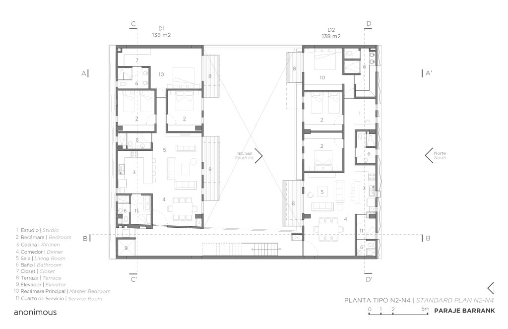
The collection is organized in clusters of floor plans and images of apartment building stairs, segmented by paragraphs from the essay “The Path towards Access and Circulation” by Oliver Heckmann, editor of the Birkhäuser Floor Plan Manual Housing.





“Access describes the path from the public to the private sphere and the space it occupies, which begins with two thresholds: the first is the transition into the building; the second leads into one’s own apartment. In between lies an entire sequence of spaces with horizontal and vertical connections, which can present a generous face to the public sphere, and either inviting or inhospitable in nature, may promote or discourage encounters among neighbors. In conjunction
with open spaces such as balconies and terraces, the access also represents connection to the outside – it is, one might say, the prelude to a building. Similarly, it is a filter that controls and manages intimacy and allows for highly diverse lifestyles in close proximity to one another....












...The word “access” is potentially ambivalent. To begin with, it simply describes an architectural space that allows residents to enter their private sphere; beyond architecture, however, it also describes a kind of taking stock, a step-by-step build-up of understanding and acquiring insight into complex contexts. According to the “promenade architecturale” postulated by Le Corbusier, which provides the basis for exemplary designs such as the Villa Savoye in Poissy (1929), the entire configuration of the design is derived from the path into and through the house. To the user, the “promenade
architecturale” is revealed as a scenic sequence of spatial perceptions; however, it is also an element that establishes a hierarchy, a kind of unwritten user manual with which the structure of the house unfolds and becomes accessible to the user by virtue of his movement – step by step...










...But what is the function of this space if one thinks beyond its pure circulation role and wishes to explore its potential? The access space is a spatial and social buffer between a complex, anonymous public space and the intimate, individual environments of the residents. Sociologists have coined the term living environment for such spaces – an area that surrounds the residence, protects it while still being a part of it and at the same time providing an additional sphere of activity for the residents...





...To regard the access space as no more than a thoroughfare is to misjudge its potential. After all, it offers ideal conditions for neighborly contact, for in contrast to the public space the number of local residents is manageable – an important prerequisite for people’s willingness to socialize. Moreover, encounters take place out of necessity, as it were, and repeatedly; neighborly routines can therefore develop and become established. For children, especially, the access space also functions as an open space – located beyond the boundaries of the parental apartment but still sheltered. Thus it becomes part of their living environment in a most natural fashion – and it becomes a space in which they linger...











..The question whether the access space is merely a passage space or whether one also enjoys spending time in it, is first and foremost in the hands of the residents. They might be able to live in the building without the access space as a social interface; however, when the space invites this type of use by virtue of its architecture and program, it is readily utilized as such. The invitation to linger is thus an offer with no strings attached. If it is accepted, the access space can become a place for casual meeting, communal identification, and representation for all residents...





...On the other hand, the access space is invariably in a tenuous relationship with the rest of the building, because efficiency dictates that it should occupy as little area as possible. This is an economic dilemma, especially evident in social housing developments where the dictum of economic efficiency has resulted in access spaces that are spatially, functionally, and qualitatively impoverished. Often, too many units are attached to a single access system. As a result, the access system becomes anonymous and inhospitable and is one of the reasons for the social problems arising in buildings of this kind...






...Shaping the circulation in terms of space and program is one of the great challenges in housing. In this context, how to deal with the access space also depends on how habitation is understood and on the question of where habitation begins: in front of the building, behind the front entrance or only behind the apartment door?...






...Depending on the urban context and the building type, the access spaces vary in expanse and complexity: in the case of detached houses and larger housing estates, the houses are often surrounded by additional buildings, green spaces or common areas – and in some cases shared spaces within the buildings – which taken together can be regarded as part of this space and its potential. Apartment towers often feature lobbies in the entrance area, which deliberately delay the transition into the private sphere and invite residents to linger for a while. The access space tends to be more compact in urban infill developments, where details can play a key role: whether there is a canopy or not, whether the entrance door is recessed and thus sheltered from the elements, how the threshold is designed, how spacious, bright and inviting the space on the inside of the front door is, whether the landings are large enough to encourage social interaction, or even whether there are opportunities along the way to sit down for a brief chat.”






Sources:
Heckmann, Oliver. (2016). “The Path towards Access and Circulation,” in Floor Plan Manual of Housing. Birkhäuser.
Divisare. Plans of Apartment Blocks. Divisare, Rome, Italy. https://divisare.com/publications/plans-of-apartment-blocks
This website, including all data and information incorporated herein, is being provided for information purposes only. For certainty, the author provides no representation or warranty regarding any use of or reliance upon this website, including no representation or warranty that any architectural designs comply with applicable laws including any applicable building code requirements or municipal by-laws. Any use of or reliance upon this website by any person for any purpose shall be at such person’s sole risk and the author shall have no liability or responsibility for any such use of or reliance upon this website by any person for any purpose. Prior to any use of or reliance upon this website by any person for any purpose, consultation with a professional architect duly licensed in the applicable jurisdiction is strongly recommended.